11 - 2460 Anson Drive W Mississauga, Ontario L5S 1G7
1 Bathroom
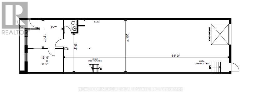
1,715 ft2
Partially Air Conditioned
Forced Air
$19.50 / ft2
* Functional Office / Warehouse Space * Truck-Level Dock * Plenty of Available Parking * Prime Mississauga Location * Fully Sprinklered * Close Proximity to Major Highways and Airport * Hwy's 427, 409, 401, 407, and 410 * Clean Uses Only * No Automotive, Cross Docking / Heavy Shipping, Resturants Uses or Bakeries (id:48934)
Business
| Business Type | Industrial |
| Business Sub Type | Warehouse |
| Name | * 1,715 sq.ft with Truck-Level Door |
Property Details
| MLS® Number | W12917098 |
| Property Type | Industrial |
| Community Name | Northeast |
| Amenities Near By | Highway, Public Transit |
Building
| Bathroom Total | 1 |
| Cooling Type | Partially Air Conditioned |
| Heating Fuel | Natural Gas |
| Heating Type | Forced Air |
| Size Interior | 1,715 Ft2 |
| Type | Warehouse |
| Utility Water | Municipal Water |
Land
| Acreage | No |
| Land Amenities | Highway, Public Transit |
| Zoning Description | E2 |
https://www.realtor.ca/real-estate/29511600/11-2460-anson-drive-w-mississauga-northeast-northeast
Contact Us
Contact us for more information



